Lyceum Fons Vitae Amsterdam
LerenHoe transformeer je een monumentaal gebouw in een lichte, sprankelende leeromgeving?
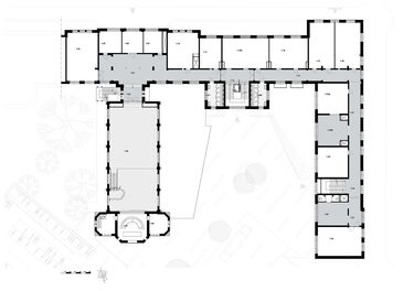
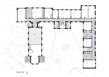
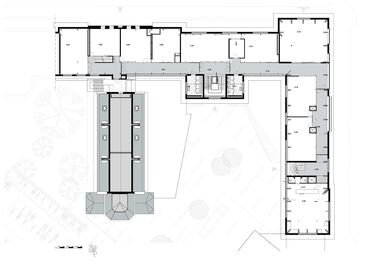
Het Fons Vitae Lyceum is een begrip in Amsterdam. Het monumentale kloosterpand dateert uit 1924. Al jaren waren er plannen om het gebouw met donkere gangen en te kleine lokalen te moderniseren. Een brand in 2017 bracht alles in een stroomversnelling. De schade was zo enorm dat na de sanering alleen nog de gevels, het casco en een deel van de kap overheid stonden. Een uitgelezen kans om het gedateerde pand grondig aan te pakken en te verduurzamen.
Naast het herstellen van de kap was er een lange lijst van verbeterpunten. De sfeer van ijzeren tucht moest plaatsmaken voor een lichte en inspirerende onderwijsomgeving. Dat betekende veel daglicht in het gebouw brengen, systeemplafonds verwijderen zodat de kloosterelementen weer zichtbaar zijn, de lokalen vergroten en het slechte binnenklimaat (kinderen doezelden weg) verbeteren.
Verduurzaming
De donkere gangen, kleine lokalen en het slechte binnenklimaat maakten plaats voor een onderwijsomgeving die voldoet aan de hedendaagse eisen.
Op verschillende manieren is er meer ruimtelijkheid en daglicht in het klassieke gebouw gebracht. Zo zijn kleine lokalen samengevoegd tot grotere ruimtes met een leerplein ertussen. Omdat er in dit monumentale gebouw geen extra ramen mochten komen is er gekozen voor grote glaspanelen tussen de lokalen en de gangen. Daarnaast zijn de bogen boven de deuren opengemaakt en voorzien van glas. Hierdoor zijn de donkere gangen veranderd in lichte, transparante ruimtes.
Vanwege asbest zijn alle niet originele wanden verwijderd en opnieuw gestuukt. Op sommige plekken is het oorspronkelijke metselwerk zichtbaar gehouden, als tastbare verwijzing naar het klooster dat het gebouw ooit was. De muren zijn wit geschilderd zodat ze het licht weerkaatsen.
De kapverdiepingen hebben de grootste aanpassingen gekregen. Wat ervan over was na de brand is kaal geschraapt en opnieuw opgebouwd en versterkt met een moderne staalconstructie. In de kap zijn veertien hybride lesruimtes bijgebouwd die allemaal verschillen van grootte en mate van openheid. Aan de achterzijde is een glazen dak gekomen dat licht geeft aan de twee verdiepingen met de nieuwe lesruimtes. Door het vele glas en de naturel houten kozijnen is de sfeer aangenaam en ruimtelijk. Alle ingrepen hebben van het Fons Vitae Lyceum (‘bron van leven’) een sprankelende leeromgeving gemaakt met veel onverwachte doorzichten die het contact tussen de leerlingen stimuleren. Het speelse licht komt tot in de uithoeken van het gebouw. Het lyceum is sinds de renovatie de meest populaire school van Amsterdam, zo blijkt uit de jaarlijkse analyse van de Centrale Loting en Matching.
Het is een gebouw geworden waar leerlingen en docenten elkaar weer zien en ontmoeten.
In de kapel zijn de verlaagde systeemplafonds weggehaald en is de tussenvloer ingekort waardoor er een vide is ontstaan. Het grootste vertrek doet dienst als studieruimte voor de leerlingen. De met glas afgesloten vide is het domein van de docenten, bereikbaar via een brede moderne trap. Door het glas is er tot in de nok zicht op de dakspanten. Het resultaat is een kathedraalachtige ruimte waarin originele kloosterelementen weer te zien zijn.
De gevels zijn aan de binnenzijde geïsoleerd met voorzetwanden, waar mogelijk is de oude lambrisering gespaard gebleven. Door het opdikken van de muren moest het middelpunt van de bogen opnieuw worden gecentreerd en uitgelijnd. De bogen en verdiepte neggen van de gevelkozijnen zorgen met hun ritme en diffuse lichtreflectie voor een serene sfeer.
Een bestaand gebouw opnieuw ontwerpen is een grote uitdaging en vraagt om veel creativiteit, maar het levert heel veel voldoening op.
Het Fons Vitae is een prachtig comfortabel gebouw geworden met een gezond binnenklimaat. Het enkel glas is vervangen door hoogwaardig isolatieglas, er is een uitgebalanceerde ventilatie met CO2 meting, een laag temperatuur verwarmingssysteem en een warmte-koudeopslag installatie. De grote warmtepompen op het terrein zijn ‘ingepakt’ met geluidsabsorberende kokosmatten, begroeid met planten. De enorme luchtbehandelingskast voor de warmteterugwinning staat in de kelder. De luchtschacht aan de buitenzijde van het gebouw is van glas zodat de historische gevel erachter nog te zien is. Het gebouw is niet energie-neutraal, dat was niet realistisch. Het is wel gasloos.




























































































































